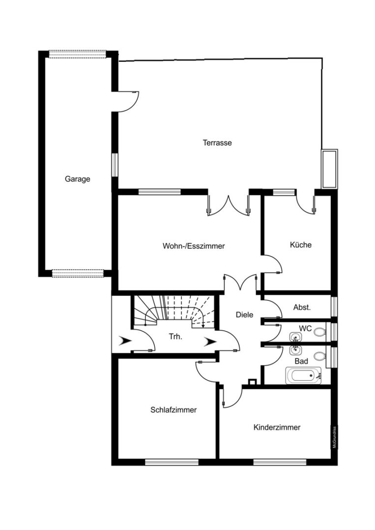
Das hier angebotene gepflegte 2-Familienhaus mit großer Garage liegt in dem Schönen Dorf Monschau-Rohren direkt am Nationalpark Eifel. Besonders hervorzuheben ist das 1.800m² große Grundstück.
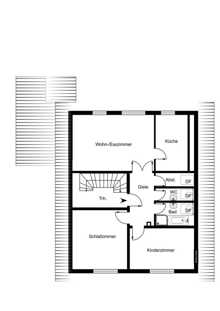
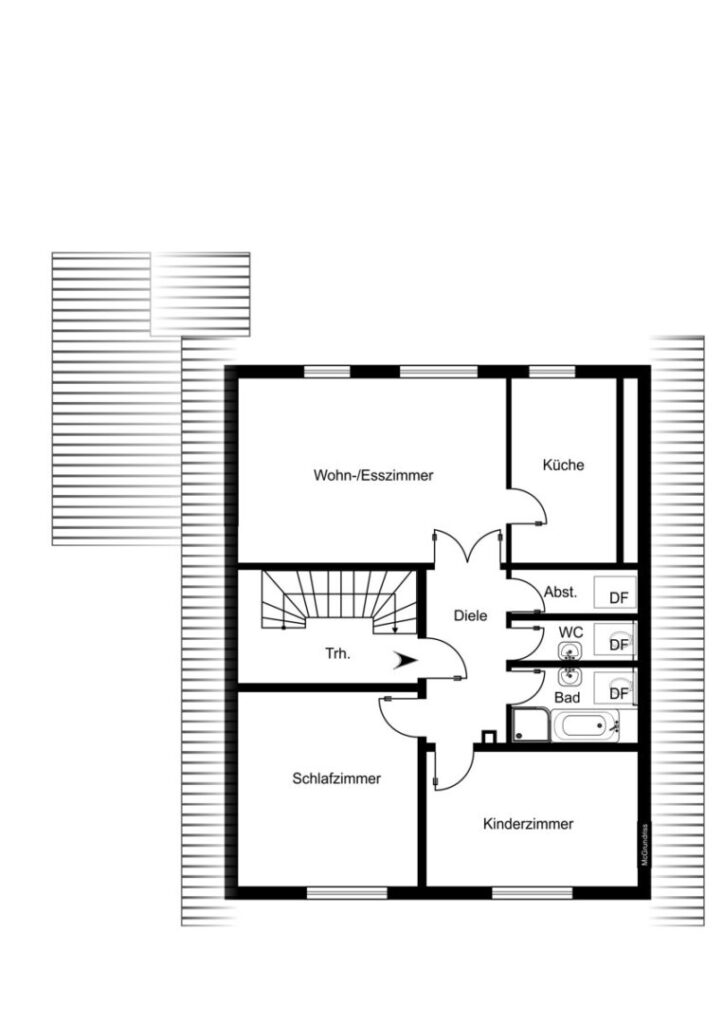
Das Haus bietet auf einer Fläche von insgesamt ca. 180m² zwei 3-Zimmer Wohnungen mit jeweils 95m² (EG) und 85m² (OG). Beide Wohnungen haben den gleichen Grundrissund verfügen über ein Wohn-Esszimmer, eine Küche,einen Abstellraum, ein Gäste-WC, ein Badezimmer und zwei Schlafzimmer. Die Erdheschosswohnung bietet außerdem eine schöne Terrasse mit Blick in den großen Garten. Zu jeder Wohnung gehört ein großer abgeschlossener Kellerraum.
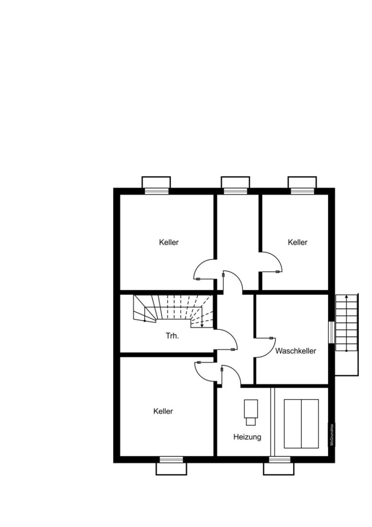
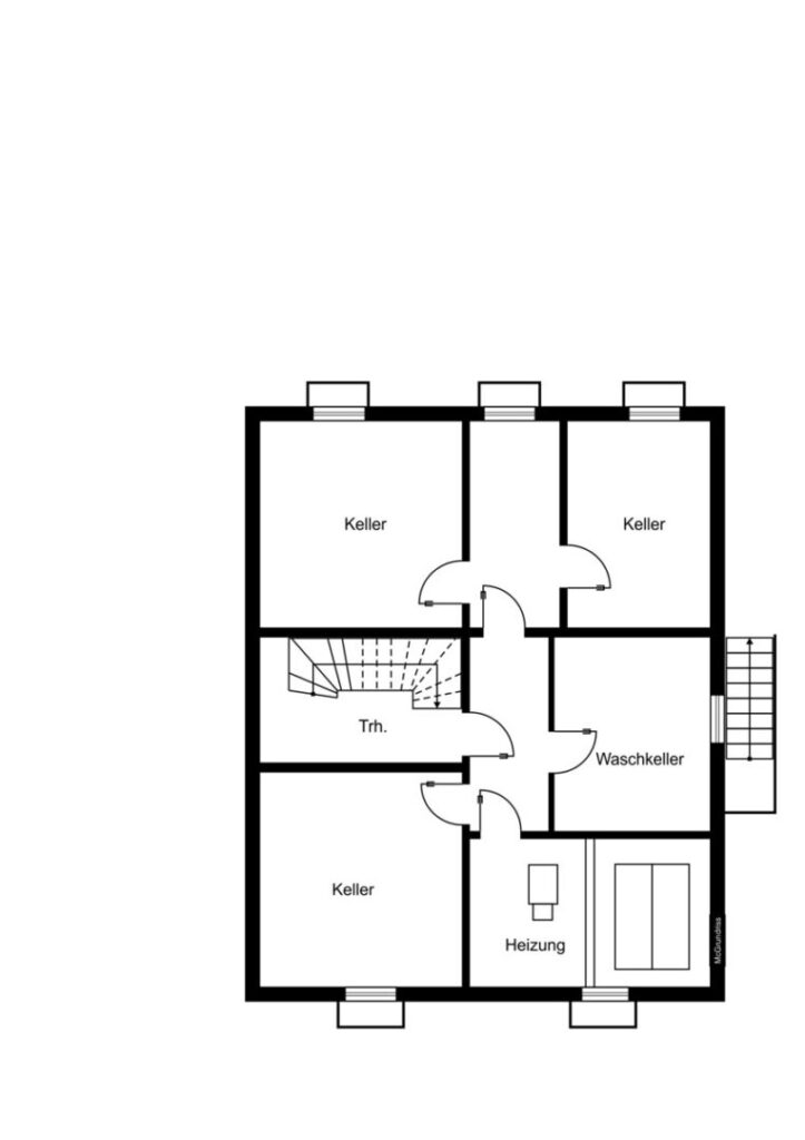
Das Haus ist voll unterkellert. Neben dem Heizungskeller finden Sie hier auch einen Waschraum für Waschmaschinen und Trockner.
Eine große 9m Garage bietet Platz für das Auto, Fahrräder und Gartengeräte.
Das Haus wird Mieterfrei übergeben.



